Piso en venta en Palma De Mallorca, Baleares (Foners)
Palma De Mallorca | Foners
REF. 2801
450.000 €

3

2

91 m2
Construcción: 2025
Calefacción: eléctrica
Aire acondicionado: Por conductos
Armarios:
Lavandería

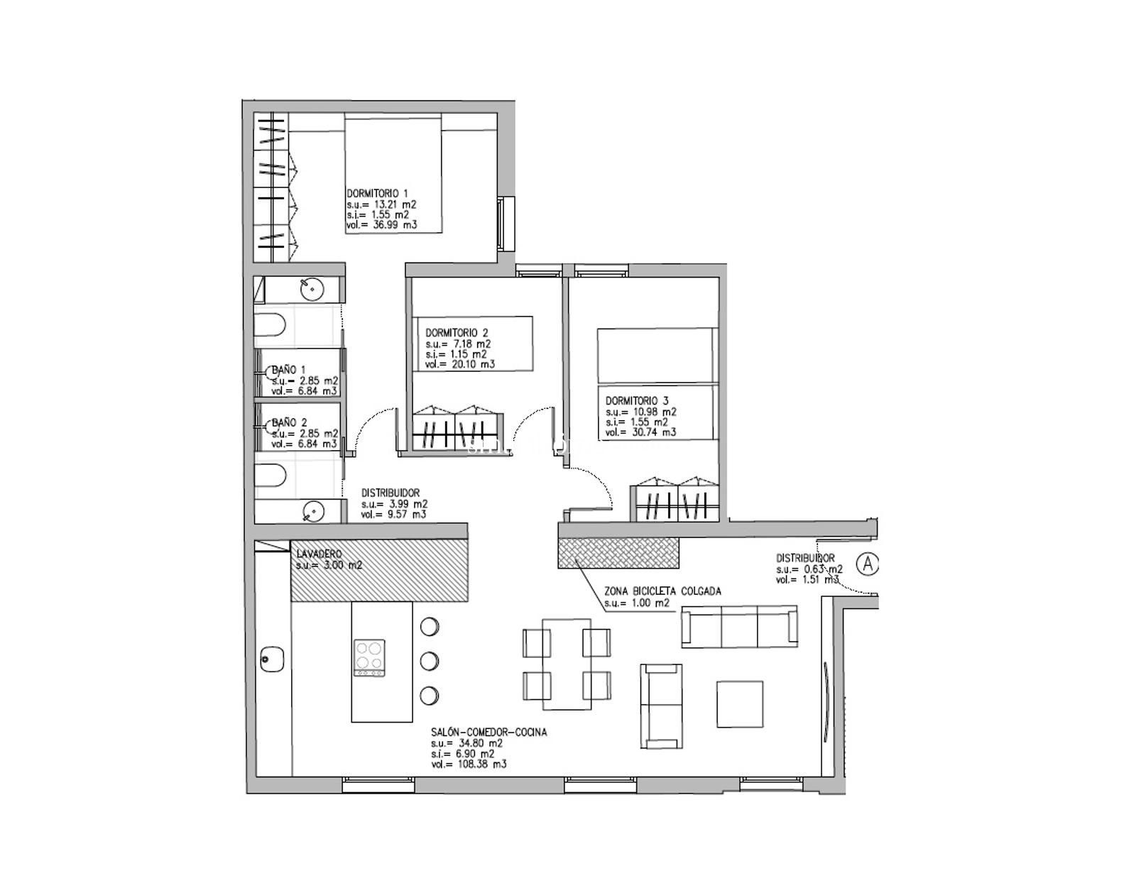
Excelente apartamento de obra nueva ubicado en una promoción de 12 viviendas en una de las zonas con mayor proyección de Palma.


La propiedad cuenta con 91,01 m2 en zonas interiores distribuida 3 habitaciones, 2 baños (1 de ellos en suite) cocina americana semi-equipada.


Extras:

• Carpintería exterior en PVC blanco, con doble acristalamiento aislante y persianas térmicas enrollables en dormitorios, asegurando eficiencia energética y aislamiento acústico.

• Puerta de entrada de seguridad, con cerradura de tres puntos, bisagras anti-palanca y tirador. 

• Suelos de gres cerámico en toda la vivienda.

• Sistema de climatización por conductos, con salidas en cada estancia y uso de refrigerante ecológico conforme a normativa europea. Producción de agua caliente sanitaria mediante sistema eléctrico (ACS).


Finalización Obras Previsto : Primer trimestre 2027





Situada en una zona residencial bien conectada con el centro histórico y la playa de Palma, esta vivienda permite acceder cómodamente a todos los servicios esenciales, comercios y áreas de ocio de la ciudad.


¡Visita altamente recomendada por el equipo Smarthome!

Condiciones generales

Recomienda contratar un abogado especializado para verificar el estado legal de la construcción. Los datos expuestos son ofrecidos por terceros, meramente informativos y se suponen correctos. Smart Home Mallorca no garantiza su veracidad. La oferta se sujeta a errores, cambios de precio, omisión y/o retirada del mercado sin aviso previo. Disponibilidad a acordar. Los datos aquí expuestos se presumen verídicos, aunque Smart Home Mallorca no se responsabiliza de su exactitud, por lo que le recomendamos la contratación de un abogado especializado para que compruebe la situación jurídica de la vivienda. La oferta está sujeta a errores, cambios de precio, omisión y/o retirada del mercado sin previo aviso. El notario, impuestos y gastos de registro corren a cargo del comprador de acuerdo con la legislación española. Los honorarios de la agencia inmobiliaria correrán a cargo del vendedor. En caso de alquiler, el arrendatario es el responsable de los honorarios de la agencia. Los precios aquí mencionados excluyen cualquier impuesto o gravamen aplicable.

Información enérgetica

Recomienda contratar un abogado especializado para verificar el estado legal de la construcción.

PROPIEDADES SUGERIDAS

 
Palma De Mallorca | Jaime III
Piso en alquiler en Palma De Mallorca, con 183 m2, 3 habitaciones y 3 baños, Ascensor, Amueblado y Calefacción eléctrica.
4.900 €/mes

4

3

183 m2

10,00
 
Palma De Mallorca |
Lujoso Ático de diseño, en venta en un edificio de principios del siglo XX con solo 4 viviendas, íntegramente rehabilitado al más alto nivel de acabados y equipamiento. Ubicado en el casco histórico de la ciudad. Las viviendas de este edificio impactan por su luminosidad, confort y calidades excelentes, capaz de complacer a los gustos más exigentes. 
La propiedad cuenta con 4 habitaciones, 4 baños (2 de ellos en suite), cocina americana totalmente equipada, una terraza al mismo nivel que el salón de 15 m² y la segunda de 22 m² se encuentra en el solarium.
Extras: Aire acondicionado f/c, armarios empotrados, cocina con encimera de cemento, campana Miele + vitro, inducción + filtro recirculación, friforifico, congelador, lavavajillas y horno Miele. Baños con acabado en Mortex, lavabos de piedra y WC y
bidet Catalan. Griferia Quadro. A/C

ZONA: El Casco Antiguo es uno de los 5 distritos que forman la ciudad de Palma y contiene 13 de los 89 barrios de la ciudad.
Se caracteriza por sus numerosas calles estrechas entrelazadas, plazas y edificios antiguos, creando una atmósfera mágica y formando un paisaje arquitectónico que refleja la historia viva de la ciudad. La mayoría de los edificios históricos construidos entre los siglos XV y XVIII se encuentran en este distrito, con sus legendarios patios de palacio de majestuosa belleza. Es una zona animada, llena de refinados restaurantes, tiendas, museos, galerías de arte y un sinfín de servicios para complacer tanto a sus visitantes como a sus habitantes.
El reducido perímetro y la gran demanda de propiedades, la convierten en la inmobiliaria de mayor precio (por metro cuadrado) de toda la isla.
Lois 13 barrios del casco antiguo son: Sa Calatrava, Cort, Jaume III, La Lonja-Borne, Mercat, La Missió, Monti-sion, Plaça dels Patins, Puig de Sant Pere, Sant Jaume, Sant Nicolau, La Seu y Sindicat.
2.499.000 €

4

4

309 m2

37,00
 
Palma De Mallorca |
Piso en venta en Palma De Mallorca, con 113 m2, 3 habitaciones y 2 baños, Aire acondicionado y Calefacción eléctrica.
495.000 €

3

2

113 m2

33,00