Piso en venta en Palma De Mallorca, Baleares (Foners)
Palma De Mallorca | Foners
REF. 2802
450.000 €

3

2

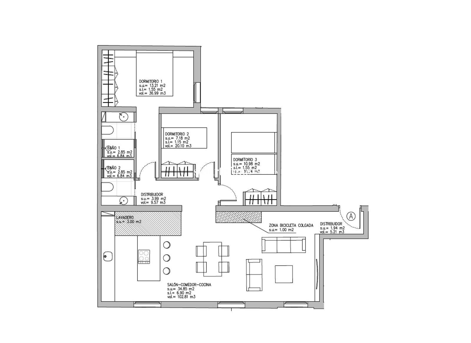
93 m2
Construcción: 2025
Calefacción: eléctrica
Aire acondicionado: Por conductos
Armarios:
Lavandería

Excelente apartamento de obra nueva ubicado en una promoción de 12 viviendas en una de las zonas con mayor proyección de Palma.


La propiedad cuenta con 92,97 m2 en zonas interiores distribuida 3 habitaciones, 2 baños (1 de ellos en suite) cocina americana semi-equipada.


Extras:

• Carpintería exterior en PVC blanco, con doble acristalamiento aislante y persianas térmicas enrollables en dormitorios, asegurando eficiencia energética y aislamiento acústico.

• Puerta de entrada de seguridad, con cerradura de tres puntos, bisagras anti-palanca y tirador. 

• Suelos de gres cerámico en toda la vivienda.

• Sistema de climatización por conductos, con salidas en cada estancia y uso de refrigerante ecológico conforme a normativa europea. Producción de agua caliente sanitaria mediante sistema eléctrico (ACS).


Finalización Obras Previsto : Primer trimestre 2027





Situada en una zona residencial bien conectada con el centro histórico y la playa de Palma, esta vivienda permite acceder cómodamente a todos los servicios esenciales, comercios y áreas de ocio de la ciudad.


¡Visita altamente recomendada por el equipo Smarthome!

Condiciones generales

Recomienda contratar un abogado especializado para verificar el estado legal de la construcción. Los datos expuestos son ofrecidos por terceros, meramente informativos y se suponen correctos. Smart Home Mallorca no garantiza su veracidad. La oferta se sujeta a errores, cambios de precio, omisión y/o retirada del mercado sin aviso previo. Disponibilidad a acordar. Los datos aquí expuestos se presumen verídicos, aunque Smart Home Mallorca no se responsabiliza de su exactitud, por lo que le recomendamos la contratación de un abogado especializado para que compruebe la situación jurídica de la vivienda. La oferta está sujeta a errores, cambios de precio, omisión y/o retirada del mercado sin previo aviso. El notario, impuestos y gastos de registro corren a cargo del comprador de acuerdo con la legislación española. Los honorarios de la agencia inmobiliaria correrán a cargo del vendedor. En caso de alquiler, el arrendatario es el responsable de los honorarios de la agencia. Los precios aquí mencionados excluyen cualquier impuesto o gravamen aplicable.

Información enérgetica

Recomienda contratar un abogado especializado para verificar el estado legal de la construcción.

PROPIEDADES SUGERIDAS

 
Palma De Mallorca |
Dúplex en venta en Palma De Mallorca, con 359 m2, 3 habitaciones y 4 baños, Piscina, 2 plazas de Garaje, Trastero, Ascensor, Amueblado, Aire acondicionado y Calefacción eléctrica.
3.900 €/mes

3

4

359 m2

167,00
 
Palma De Mallorca |
Ático en venta en Palma De Mallorca, con 80 m2, 2 habitaciones y 1 baños, Aire acondicionado y Calefacción eléctrica.
450.000 €

2

1

89 m2

29,00
 
Palma De Mallorca |
Piso en venta en Palma De Mallorca, con 80 m2, 3 habitaciones y 2 baños, Aire acondicionado y Calefacción eléctrica.
410.000 €

3

2

91 m2

12,00